Aller au contenu



Espace locataire

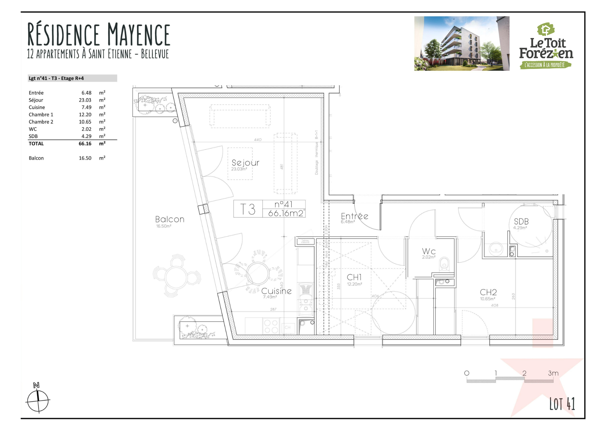
LOT 41

Partager
Imprimer
LOT 41
188000€


Éligible PSLA Prêt Social Location Accession

Détail du bien

  • Quartier :

Description

Bel appartement T3 au 4ème étage de la résidence avec ascenseur.

Il se compose de deux chambres, d’une salle de bain avec W.C séparés. Le séjour-cuisine s’ouvre sur une terrasse de 16 m².

Exposition : Sud

Pour plus d’informations, contacter le service commercial au 04.69.35.07.55

 


Le guide du propriétaire
Les guides Toit Forézien

Accéder à la propriété pour la première fois est une étape majeure. Ce guide pratique s’adresse aux primo-accédants dans la Loire (42). Vous y trouverez conseils, informations légales et solutions pour acheter un bien, neuf ou ancien, dans les meilleures conditions.

Le guide du propriétaire