LOGEMENT SOCIAL T4 situé au 17, ROUTE DE JONZIEUX 42660 ST GENEST MALIFAUX

LOGEMENT SOCIAL T4

RESIDENCE DU PILAT
17, ROUTE DE JONZIEUX 42660 ST GENEST MALIFAUX Localiser

Détail du logement

Quartier : MARLHES
Type de logement : T4
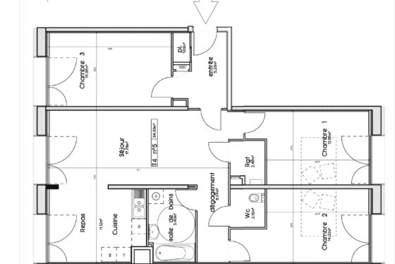
Surface habitable : 95
Loyer : 817 €
Charges : 323

Description

Le Toit Forézien vous propose à la location sociale :

 

MARLHES
Appartement Type 4 – Surface habitable : 95m²
2ème étage avec ascenseur
Adresse : 17 route de Jonzieux 42 660 Marlhes

Chauffage collectif gaz

 

• LOYER : 493.62 € / mois
Payable à terme échu (conventionné APL / Aides au Logement).

• CHARGES : 310.38 € / mois
Provision, avec régularisation annuelle. Inclus : entretien et réparations des parties communes, maintenance et chauffage, eau chaude, eau froide, ascenseur, VMC, taxe ordures ménagères, forfait réparations locatives.

• CAUTION : 493.62 €
Soit un mois de loyer hors charges, à verser à l’entrée dans les lieux.

 

Logement conventionné APL
Demande de logement social – Cliquez ici
Dossier de candidature à constituer, pour validation en commission d’attribution.

 

Soumis à plafond de ressources

 

Pour visiter le logement, et pour toute information complémentaire, merci de contacter :
Mme BERNARD 04 77 33 08 13

 

location@toitforezien.fr
Visite sur rendez-vous

Consommation énergétique en kWh/m²/an

0 à 50
50 à 90
91 à 150
91
151 à 230
231 à 330
331 à 450
451

Émissions de gaz à effet de serre

0 à 5
6 à 10
11 à 20
21 à 35
24
36 à 55
56 à 80
80